home
projects
publications
profile
contact
‹
›
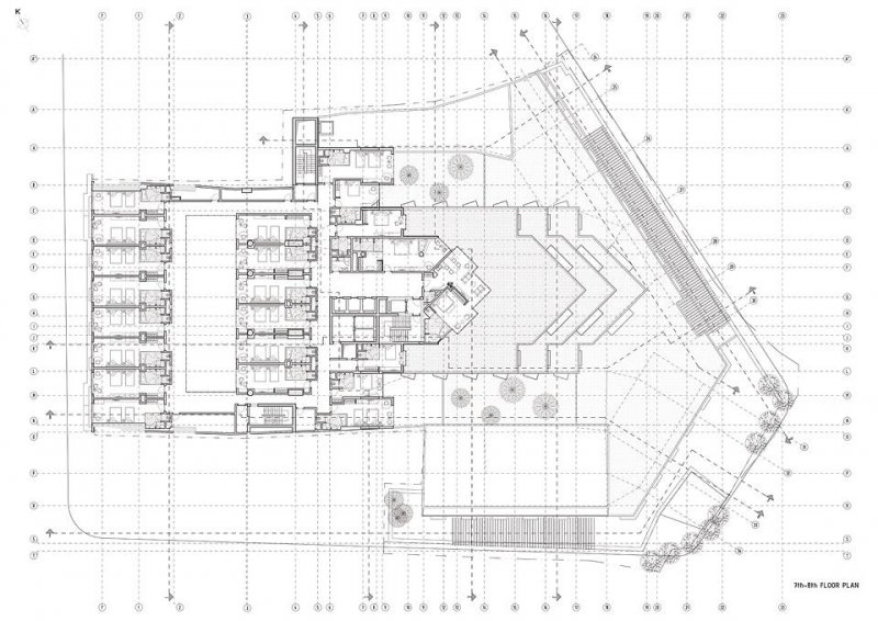
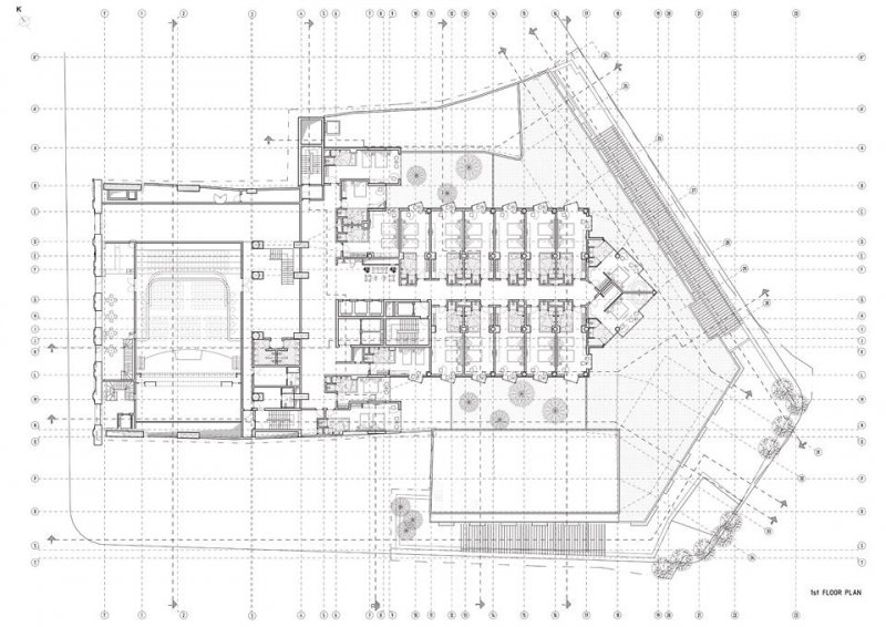
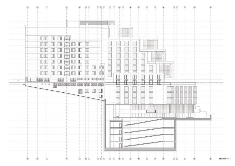
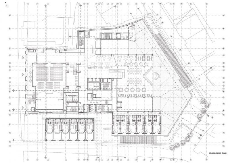
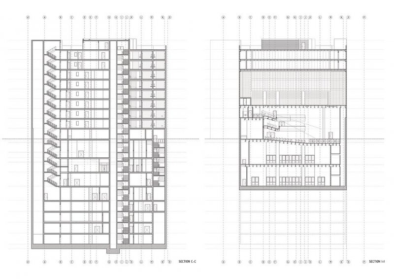
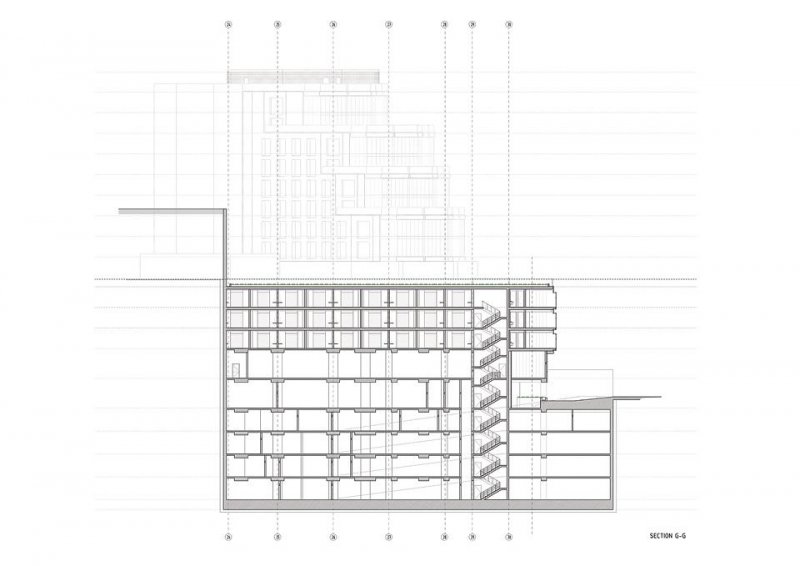
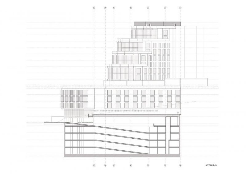
Taksim Theater and Maksim Club
Taksim Sahnesi Beyoğlu,Istanbul
Building Type
cultural
Kasimiye Madrasa
Liman Han
Rezzan Has Museum
Seyh Zafir Complex
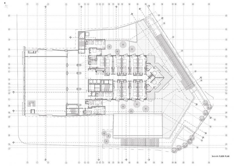
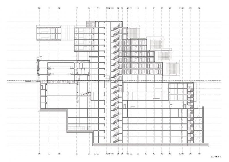
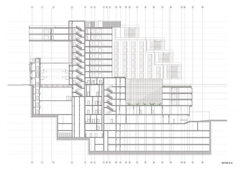
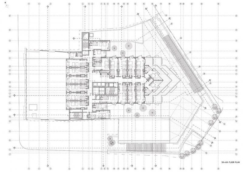
Sundance Hotel and Residences
Surp Giragos Church Diyarbakir
educational
Kadir Has University
Zografyon Greek Primary School for Girls
hotels
Barbaross Pasha's Beach Antalya
Club Calimera Serra Palace Antalya
Generali Han
Grand Yazici Bodrum
Magic Life Bodrum
Martı La Perla Marmaris
Queen's Park Resort Kemer
Radisson Blu Cesme
Taksim Theater and Maksim Club
Unsaphire Antalya
Zeytinada Bodrum
mixed use
Esenyurt Municipality Complex
Real Istanbul
Uskudar Municipality Complex
monumental
Ataturk's Museum Villa
Cizre Red Madrasa
Maiden's Tower
Topkapi Palace
religious
St. George Church Diyarbakir
Surp Giragos Church Diyarbakir
residential
Bitez Park Mansions
Cagdas Bodrum Residences
Cagdas Gokcebel Villas
Chalet Azur Bodrum
Salvaraga Villas Bodrum
Villa-Beylerbeyi
Villa-Cengelkoy
Yalikavak Villas
Zeytindali Villas Bodrum
retail
Spice Bazaar
Yuksel Caglar Shopping Center
sports & leisure
Beylerbeyi Hamam
urban renewal
Antalya Kaleici
Cumalikizik
Diyarbakir City Walls
Tarlabasi
Copyright © 2017 TURES All Right Reserved.
Terms and Privacy Policy